Jennifer Aaron
+

Nimbin

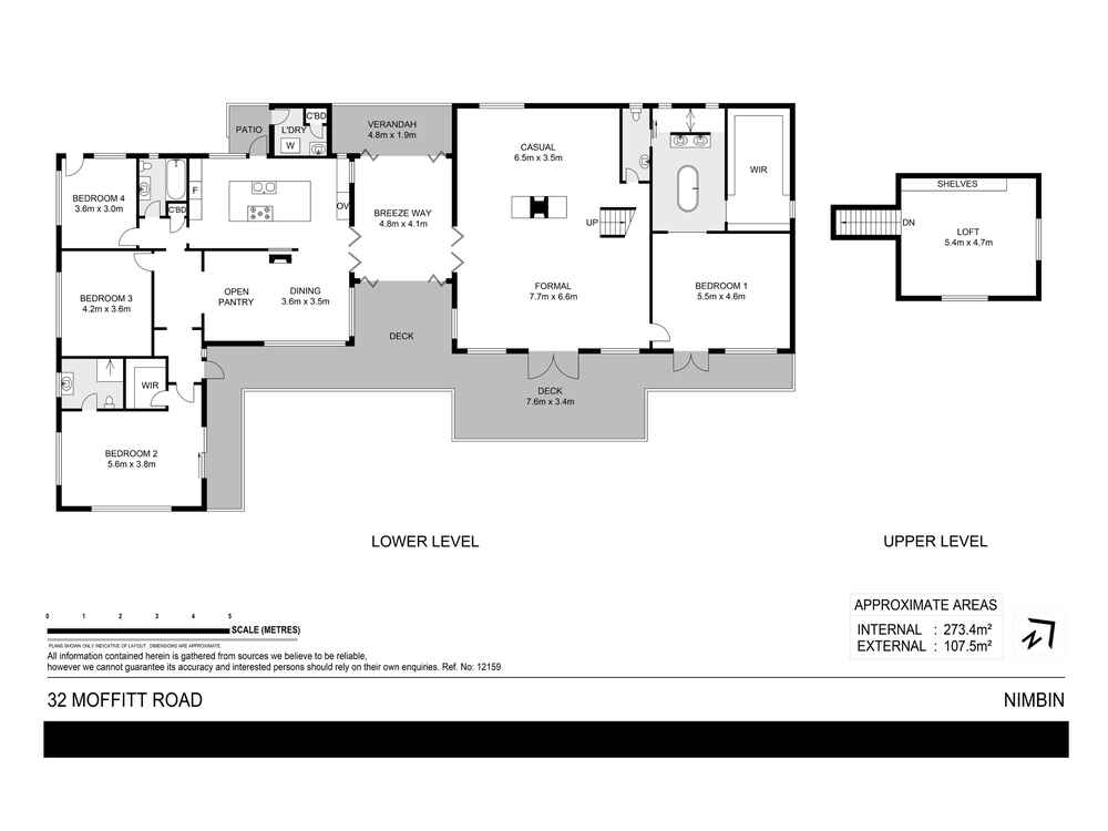
Fig Tree Farm 32 Moffitt Road

Bedrooms
4
Bathrooms
3
Parking
6

Idyllic Hinterland Retreat on 48.56 Hectares with 360 Degree Views

Perched high on the magical hinterland capturing 360-degree views taking in the ranges and Nimbin Rocks, this beautifully restored and transformed 1920's bungalow is nestled on an idyllic 48.56 hectare parcel of arable land. Enjoying permanent creek frontage, sprawling grounds and a host of improvements and natural features, it presents a glorious sanctuary just minutes from the historic Nimbin township.

Wonderful permanent residence or perfect family retreat
Gorgeous bungalow substantially extended in 2012
Framed by classic verandahs and a spacious breezeway
Additional one bedroom guest cottage
4 bedrooms all with stunning views and 3 bathrooms
Luxurious master suite with freestanding bath & double shower
Dressing room and a huge walk-in robe complete with shoe racks and glass panelled drawers
Formal and casual living areas warmed by a double-sided stone fireplace
Living room plus charming dining room with slow combustion stove
Gourmet designer stainless steel gas kitchen
Qasair rangehood, Bosch french door plumbed fridge, Highland cooktop, SMEG double oven
Innovative loft study/home office space
Abundant natural light and storage throughout
Multiple off-street parking including a double carport and four-bay shed
Satellite, FOXTEL, NBN, solar hot water and electricity
Spotted gum floors, soaring ceilings, retractable insect screens and doors throughout
Sprawling gardens with established veggie garden
Wet edge mineral pool with glass fencing, surrounding deck, poolside gazebo with BBQ
2 spring-fed dams, 3 X 20,000 litre water tanks, 5000 litre pool tank, 15000 litre dairy tank
Breathtaking vantage point enjoying dynamic sunrises and sunsets and escarpment views
Just 5 minute drive to Nimbin township and 25 minutes to Lismore

SOLD
Inspection times
Inspect Strictly By Appointment
Share this property
Share
Facebook
LinkedIn
Twitter
Property Information
ID #
0000358694
Type
Lifestyle
Land size approx
48.56 hectares (approx)
Building Size
273 sqm (approx)
Council rates
$2,252.00 annually
Contact Jennifer Aaron
Up
Selling your property can be a nerve-wracking experience at the best of times. When you sense your agent isn't performing it can be extremely frustrating and ultimately very expensive. I dedicate myself to ensuring all aspects of your property's sale are managed flawlessly. This is how I consistently achieve outstanding sales results and it's the reason why my clients recommend me to their friends.
Jennifer Aaron © 2016 | disclaimer | privacy statement | Agent Admin |  Website by coreweb | 
designed by obii.mobi